Eu vou elaborar o projeto arquitetônico do seu rascunho
Descrição do Serviço
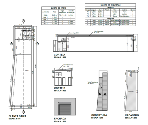
Elaboro o desenho do projeto arquitetônico a partir do seu rascunho.
Plantas até 70m² por R$100,00:
Entregarei: Arquivo PDF pronto para impressão/plotagem com o projeto 2D em escala, contendo: planta baixa, dois cortes, fachada e planta de cobertura.
*Acima de 70m² será cobrado o valor de R$1,80 por metro quadrado.
**Adicionais:
Por mais R$40,00, definirei portas e janelas para melhorar o desempenho de iluminação e ventilação do imóvel.
Por mais R$40,00, seguindo o rascunho enviado, vou redefinir os cômodos para buscar a melhor harmonia entre eles.
Prazos e valores podem variar conforme a complexidade e tamanho do projeto.
Alguma dúvida? Me envie uma mensagem antes da compra.




Último acesso: 09/02/2026 08:41:34