Eu vou fazer a planta baixa de seu projeto ideal
Descrição do Serviço
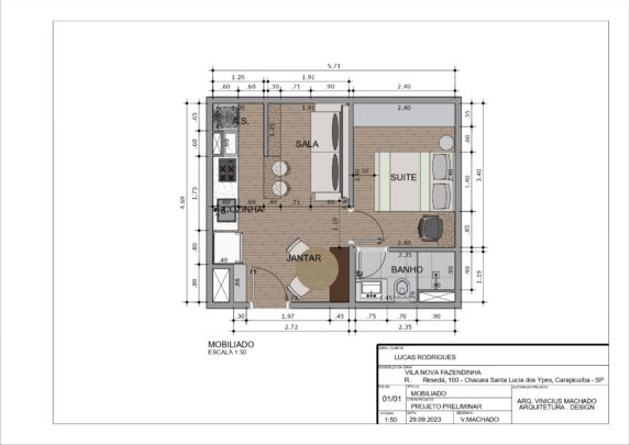
A execução de planta baixa é a etapa fundamental que traduz o conceito arquitetônico em organização espacial, funcionalidade e precisão técnica, garantindo que cada ambiente seja pensado de forma estratégica, confortável e eficiente.
Desenvolvemos plantas baixas com foco em fluxos inteligentes, setorização clara, aproveitamento máximo do espaço, conforto ambiental e estética contemporânea, sempre respeitando as necessidades do cliente, normas técnicas e viabilidade construtiva.
Cada projeto é elaborado a partir de uma análise profunda do terreno, programa de necessidades, estilo de vida dos usuários e partido arquitetônico, resultando em soluções personalizadas, funcionais e sofisticadas.



Último acesso: 20/02/2026 19:15:45