Eu vou fazer seu imóvel em AutoCad
Descrição do Serviço
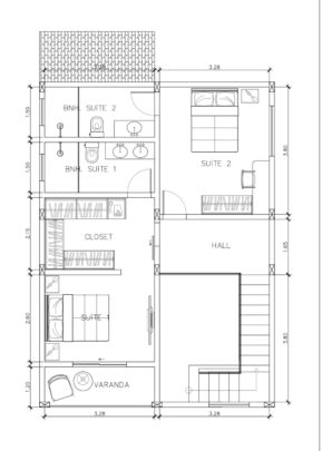
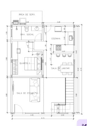
Se deseja ter a planta baixa do seu imóvel, faço este serviço para você.
Serviço: Planta baixa em PDF e DWG (AutoCad) com todas as informações necessárias e desejadas.
Planta baixa de 1 pavimento: 200 reais
Planta baixa de 2 pavimentos: 400 reais
Serviço adicional: fachada, corte, situação/ocupação: Valor a combinar
Obs: Não é projeto do zero


Último acesso: 16/04/2026 21:19:12